Dom, turecki
Turek, Cisew
powierzchnia: 94,15 m2 cena: 399 000 PLN
liczba pokoi: 4
liczba łazienek: 1
wolnostojący
  • Pow. działki: 771
  • Pow. całkowita: 94,15
  • Rok budowy: 2025
  • Liczba pokoi: 4
  • Liczba łazienek: 1
  • Łazienka z toaletą: Tak
  • Ogród: Tak
  • Stan budynku: do wykończenia
  • Materiał budowlany: cegła
  • Droga dojazdowa: nieutwardzona
  • Forma własności: własność
  • Gaz: brak
  • Woda: brak
  • Kanalizacja: brak
  • Parking: brak

OPIS

Dom deweloperski na sprzedaż Cisew k. Turku

Szukasz niedrogiego domu dla swojej rodziny?
Polecam dom deweloperski położony w Cisewie k. Turku.

Funkcjonalny układ, solidne wykonanie i bliskość miasta to zdecydowanie elementy wyróżniające ten dom :)

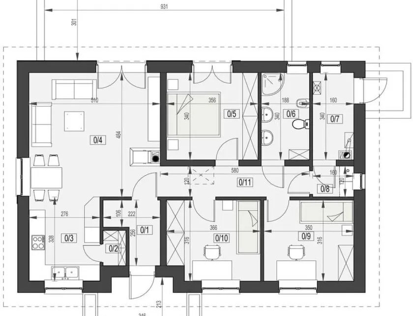
Powierzchnia nieruchomości - 94,15 m2 w której znajdziemy:
1. Wiatrołap - 4,17m2
2. Spiżarnia - 1,23 m2
3. Kuchnia - 9,05 m2
4. Pokój dzienny - 24,68 m2
5. Pokój - 12,10 m2
6. Łazienka - 6,39 m2
7. Kotłownia - 5,44 m2
8. Pomieszczenie gospodarcze - 1,92 m2
9. Pokój - 11,06 m2
10. Pokój - 11,15 m2
11. Hall - 6,96 m2

Działka o powierzchni 771 m2 o regularnym kształcie i wymiarach ok 26x29,5 m.
Dom wybudowany z cegły, ocieplony styropianem[pianem 20 cm, fundament wyizolowany i ocielpony. styropianem.
Ściany pokryte tynkiem gipsowym. Rozprowadzone instalacje elektryczne w całym domu.
Strop betonowy. Dach kopertowy pokryty blachodachówka. Okna trzyszybowe, drzwi wejściowe metalowe. Dojazd do nieruchomości zapewniony przez sprzedaż udziałów w drodze.
Media: woda w drodze, nie ma skrzynki elektrycznej, kanalizacja we własnym zakresie.
I co najważniejsze - kupując ten dom nie płacisz podatku PCC - oszczędzasz około 8000 zł :))
ZAPRASZAM na prezentację - 603 418 067

LOKALIZACJA

nr. oferty: 929
data dodania: 23.03.2026 r.
data aktualizacji: 23.03.2026 r.